ekce
enda kirwan consulting engineer

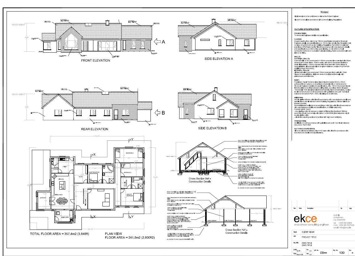
Planning Applications

ekce cover all variations to planning applications from retention permissions to full permissions


ekce provide a complete planning application service, including design, planning consultancy, drawing services, feasibility studies, planning appeals and cost estimates. Typical projects range from attic conversions and small scale house extensions to new house developments and commercial units.

 

ekce can also provide planning compliance checks and certificates to aid solicitors/purchasers/sellers during property transactions

 
Home
Planning Applications
Site Suitability Assessments
Project Management Services
Structural Surveys
Stage Payments
Snagging Lists
Civil Engineering Design
Traffic Engineering
CPO Advice
Litigation Services

Fruithill, Dungarvan, Co.Waterford
Email:info@ekce.ie
Tel: +353 58 43963
Mob: +353 86 2337434
Contact: Enda Kirwan BE CEng MIEI