| ekce enda kirwan consulting engineer | ||
| Civil Engineering Design | ||
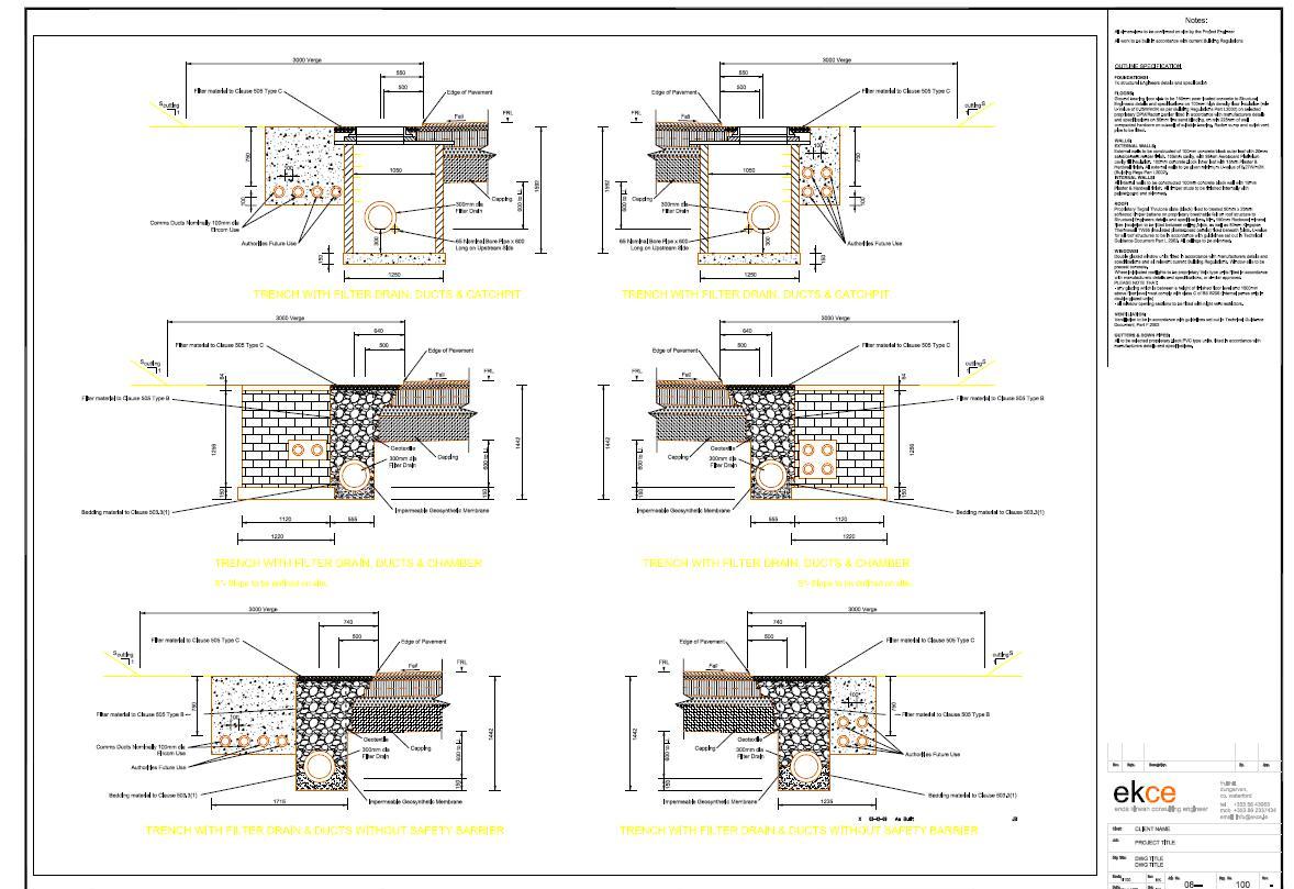
| ekce can provide a variety of engineering services under the following areas:- Road and Infrastructure Design Site Supervision of civil engineering works can also be arranged 
 | Fruithill, Dungarvan, Co.Waterford Email:info@ekce.ie Tel: +353 58 43963 Mob: +353 86 2337434 Contact: Enda Kirwan BE CEng MIEI | |
|  | ||